Close
首頁
法拍出售
房屋出租
社區大樓
法拍土地
委託買賣
公司簡介
精英團隊
人才招募
不動產知識
google查詢
中正區大樓法拍
首頁
法拍出售
房屋出租
社區大樓
法拍土地
委託買賣
公司簡介
精英團隊
人才招募
不動產知識
google查詢
首頁
›
法拍出售
›
台北大樓拍賣
›
中正區大樓拍賣
›
中正區大樓法拍
中正區大樓法拍|中正區捷運東門站商圈法拍屋瀧園大樓附車位
售
中正區臨沂街法拍屋|東門市場商圈大樓附車位
列印
售7660萬
案號:
一拍【114職一132金】
類型:
法拍大樓_台北星辰飯店
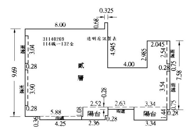
總登記坪數:
67.69坪
每坪單價:
113.16萬/坪
地址:
台北市中正區臨沂街59巷10號2樓附車位,法拍屋代標 專線0913-303663 +LINE
吳先生
(煩請告知聯絡人,您是在House-Info房屋網看到廣告,感恩幫忙)
0913-303-663
市話:
法拍屋代標服務 吳先生 0913303663 02-22650614 03-3293994
公司名稱:
財欣不動產管理顧問有限公司/專業代標/營業員(97)經證字號001562
公司地址:
新北市土城區金城路二段396號11樓/桃園市莊敬路一段346號4樓/統編:22857204
我要留言
加LINE好友
物件介紹
詳細資料
銷售狀態
:
待標中
格局
:
4房,2廳,2衛,2陽台,1廚房
社區/大樓
:
瀧園
屋齡
:
24年
車位
:
02號
所在樓層
:
2樓/共7樓
電梯
:
有
是否凶宅
:
不是
法拍屋
:
是
拍次
:
一拍
開標日期
:
114/12/24(三)
瀏覽人次
:
5人次
周邊環境
生活機能
:
新生市場,東門市場,私立巨勝幼兒園,大安森林公園,長流美術館台北館,幸安國小,台北星辰飯店,捷運東門站,建國北路高架道路,
鄰近交通
:
國道1號圓山交流道,公車仁愛臨沂街口站,可搭乘37,222,270假日,270平日,630,651假日,651平日,仁愛幹線假日,仁愛幹線平日號公車
坪數說明
建物登記總坪數
:
67.69
主建物
:
33.00
附屬建物
:
4.31
公共設施
:
23.58
土地登記總坪數
:
16.33
特色描述
♛
一零四法拍網(創立40週年)業界最大/專業團隊/全省服務/值得託付~
♠
︎
專業代標『吳先生』全程為您服務
♠
︎
代標專線
☎
0913303663
點入
+
line
💥💥💥
刊登內容以公告機關為準請投標人注意
🔥🔥🔥
法院筆錄:●點交情形→有點交●
1‧1372建號建物於114年2月6日現場查封時,該建物無門牌,並經現場與債權人之代理人確認,大樓2樓左側大門即為「臺北市中正區臨沂街59巷10號2樓」;具債權人陳報目前房屋為空屋,無人使用,故本件拍定後點交。
2‧拍賣標的經查相關主管機關後,並無發生非自然死亡情形,亦無發生過火災事件,亦非屬列管之海砂屋、輻射屋、地震受損屋,惟建物實際狀況須經專業人員辦理相關鑑定及偵測始能確認是否為海砂屋、有無輻射、有無地震受創,應由拍定人自行查明,請應買人注意。《台北地方法院案號:113年度司執宇字第146469號,給付票款》
[他項權利: 拍後塗銷]
[謄本]:總坪數67.69坪[主建坪33.00坪,附屬坪4.31坪,停車坪6.80坪(建號:1377),公設坪23.58坪(建號:1377)][RC造/住家用]
⚖
️
拍賣機關公告
📣
司法院法拍屋公告
📣
國有財產署標售不動產資訊
📣
台灣金服含未辦繼承法拍物件
📣
法拍屋拍定價公告
📣
法務部行政執行署法拍物件
📣
產權清楚☆
強制執行法
【77
條
”
81
條
】
🔎
法拍一點不燒腦~~
眉角全都在這邊~~
懶人包裡報您知~~
📣📣
104
法拍網/
透明房訊/
法拍屋,
土地全省最新拍賣資訊
📣
台北法拍屋快搜
📣
新北法拍屋快搜
📣
桃園法拍屋快搜
📣
台中法拍屋快搜
♠
北區熱門法拍屋
♠
北區法拍屋精選
♠
樂屋網
⏳
法拍屋代標流程
~~
1.
銀行代墊尾款
:(
最高可貸八成
)
2.
現場合理價格評估
3.
得標協助辦理過戶
4.
點交全程不用陪同
5.
和諧交付等您入住
6.
未得標不收取費用
☛
法拍代標找專業
~
☛
投標必中下決心
~
☛
過了這村沒那店
~
☛
別讓資金睡著了
❤
誠摯讓您感受最優質的代標全程服務
自備2成輕鬆成家~特約銀行核撥快速~只有買方安心選購~彈性出價理財首選~
❦
免費諮詢可
+line
❦
望您來電問透透
❦
消除疑慮再委託
❦
收費契約最透明
❦❦❦❦❦❦❦❦❦❦❦❦❦❦❦❦❦❦❦❦❦❦❦❦❦❦❦❦❦
雙北助理專線
☎
02-22650614
桃園助理專線
☎
03-3293994
全省
☎
0913303663
🏘
️
經紀業:財欣不動產管理顧問有限公司
統一編號:22857204
✍
經紀人:
(97)
年北市經證字001562號
💼
營業員:(98)登字第133601號
❦❦❦❦❦❦❦❦❦❦❦❦❦❦❦❦❦❦❦❦❦❦❦❦❦❦❦❦❦❦❦❦❦❦❦❦
生活e點通~
📣
財政部新青安成家
📣
全國地政電子謄本系統
📣
地籍圖便民服務
📣
房地合一專區
📣
台北捷運路線圖
📣
新北捷運路線圖
📣
桃園捷運路線圖
📣
台中捷運路線圖
台北拍賣大樓-0
台北拍賣大樓-1
台北拍賣大樓-2
台北拍賣大樓-3
台北拍賣大樓-4
台北拍賣大樓-5
台北拍賣大樓-6
物件留言
請注意,如果您詢問的內容與物件不相符合或是廣告,經過審核,系統將會直接刪除您的發問內容
相似物件
中正區
售904萬
中正區重慶南路三段129號3樓-6套房,法拍屋代標 專線0913-303663 +LINE
類型:法拍大樓_套房_古亭國中學區
坪數:9.49坪
格局:1房
住宅分類
中正區公寓拍賣
中正區大樓拍賣
中正區華廈拍賣
中正區套房拍賣
中正區透天拍賣
中正區農舍拍賣
中正區別墅拍賣
中正區一樓拍賣
中正區工業宅拍賣
中正區店面拍賣
中正區廠房拍賣
中正區廠辦拍賣
中正區商辦拍賣
中正區辦公室拍賣
中正區倉庫拍賣
免責聲明:House-Info房屋網平台系統為租用式開放房屋買賣網站建置平台,僅提供會員查詢-
台北市
,
中正區
,
大樓
-等房屋資訊參考,並不涉入任何諮詢、交易。 物件(服務)聯絡人公佈的資訊、文字、照片、圖形、產權、廣告內容、或其他資料若有不實或違法情事,或與客戶聯絡交易過程中若衍生民事或刑事等法律問題,皆與House-Info房屋網站無關,所有商標、文章、名稱等版權,皆歸屬原著作者所有!
台北法拍屋
|
台北市法拍屋
|
台北法拍屋公告
|
買台北法拍屋
|
台北市法拍屋
|
台北法拍屋買賣
|
台北法拍屋
|
台北法拍屋拍賣
資料處理中,請稍後...