Close
首頁
法拍出售
房屋出租
社區大樓
法拍土地
委託買賣
公司簡介
精英團隊
人才招募
不動產知識
google查詢
新北汐止透天法拍
首頁
法拍出售
房屋出租
社區大樓
法拍土地
委託買賣
公司簡介
精英團隊
人才招募
不動產知識
google查詢
首頁
›
法拍出售
›
新北透天拍賣
›
汐止透天拍賣
›
新北汐止透天法拍
新北汐止透天法拍|東湖商圈法拍屋瓏山林透天別墅附車位
售
汐止東湖國中生活圈法拍屋|瓏山林透天別墅附車位
列印
售4130萬
售3305萬
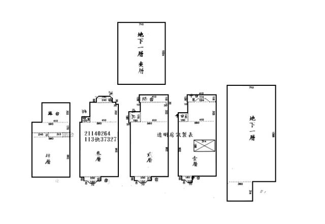
案號:
二拍【113快37327】
類型:
法拍透天_別墅_內溝溪生態館
總登記坪數:
165.13坪
每坪單價:
20.01萬/坪
地址:
新北市汐止區忠三街39巷53號4層樓獨棟透天附車位,法拍屋代標 專線0913-303663 +LINE
吳先生
(煩請告知聯絡人,您是在House-Info房屋網看到廣告,感恩幫忙)
0913-303-663
市話:
法拍屋代標服務 吳先生 0913303663 02-22650614 03-3293994
公司名稱:
財欣不動產管理顧問有限公司/專業代標/營業員(97)經證字號001562
公司地址:
新北市土城區金城路二段396號11樓/桃園市莊敬路一段346號4樓/統編:22857204
我要留言
加LINE好友
物件介紹
詳細資料
銷售狀態
:
待標中
格局
:
4房,3廳,3衛,4陽台,1廚房
社區/大樓
:
瓏山林透天區
屋齡
:
35年
車位
:
48號
所在樓層
:
4層樓獨棟透天別墅
管理費
:
每月2000元(含垃圾處理費)
管委會
:
有
中庭
:
有
電梯
:
未知
是否凶宅
:
不是
法拍屋
:
是
拍次
:
二拍
開標日期
:
115/2/5(四)
瀏覽人次
:
32人次
周邊環境
生活機能
:
內溝溪生態園區,東湖菜市場大湖公園,金龍湖.,老鷹尖,柚子山,翠湖,湖光市場,康寧醫院,東湖生活圈,東湖國小,東湖國中,內湖科技園區,南港科技園區,東湖日湖百貨,哈拉影城商圈,內湖三軍總醫院,總戶數約1442戶,管理費每月2000元
鄰近交通
:
捷運東湖站,國道1號汐止交流道,國道3號汐止交流道,公車,社區大門旁就是公車總站,可搭乘281,藍12,小S,S1,汐止社區巴士7社后線,汐止社區巴士8八連線等號公車
坪數說明
建物登記總坪數
:
165.13
主建物
:
127.51
附屬建物
:
14.65
公共設施
:
0.51
停車位
:
22.46
土地登記總坪數
:
55.14
特色描述
♛
一零四法拍網(創立40週年)業界最大/專業團隊/全省服務/值得託付~
♠
︎
專業代標『吳先生』全程為您服務
♠
︎
代標專線
☎
0913303663
點入
+
line
💥💥💥
刊●點交情形→詳如備註●
1‧3344建號拍定後點交,3354建號係拍賣不動產應有部分,拍定後不點交。
2‧民國113年10月9日現場調查時,經開鎖入內檢視為空屋,無人使用,車位編號為48號,目前無人使用。惟現在實際情形如何,仍請應買人自行查明注意。
3‧拍賣標的經臺灣臺中地方法院113年度聲扣字第3號刑事裁定准予扣押,臺中市政府警察局刑事警察大隊以113年1月15日中市警刑七字第1130002192D號函辦理禁止處分之登記在案。本件拍定後經拍定人依法繳足價金,本院核發權利移轉證書後,將依最高法院107年度台抗字第445號裁定意旨,發函通知禁止處分機關函請地政機關塗銷禁止處分登記,俾利拍定後辦理移轉登記,以達保全沒收、追徵同時兼顧交易安全維護之目的,請投標人特別注意。
4‧投標人應自行查明債務人有無積欠管理費,並注意拍定後民法第826條之1第3項規定之適用問題。
《清償票款》
[他項權利: 拍後塗銷]
特別提醒謄本資料:3344建號另有附屬建物48.44㎡,與公告不符,請應買人自行確認注意!
[謄本]:總坪數165.13坪[主建坪127.51坪,附屬坪14.65坪,停車坪22.46坪(建號:3354),公設坪0.51坪(建號:3356)][RC造/住家用]登內容以公告機關為準請投標人注意
🔥🔥🔥
法院筆錄:
⚖
️
拍賣機關公告
📣
司法院法拍屋公告
📣
國有財產署標售不動產資訊
📣
台灣金服含未辦繼承法拍物件
📣
法拍屋拍定價公告
📣
法務部行政執行署法拍物件
📣
產權清楚☆
強制執行法
【77
條
”
81
條
】
🔎
法拍一點不燒腦~~
眉角全都在這邊~~
懶人包裡報您知~~
📣📣
104
法拍網/
透明房訊/
法拍屋,
土地全省最新拍賣資訊
📣
台北法拍屋快搜
📣
新北法拍屋快搜
📣
桃園法拍屋快搜
📣
台中法拍屋快搜
♠
北區熱門法拍屋
♠
北區法拍屋精選
♠
樂屋網
⏳
法拍屋代標流程
~~
1.
銀行代墊尾款
:(
最高可貸八成
)
2.
現場合理價格評估
3.
得標協助辦理過戶
4.
點交全程不用陪同
5.
和諧交付等您入住
6.
未得標不收取費用
☛
法拍代標找專業
~
☛
投標必中下決心
~
☛
過了這村沒那店
~
☛
別讓資金睡著了
❤
誠摯讓您感受最優質的代標全程服務
自備2成輕鬆成家~特約銀行核撥快速~只有買方安心選購~彈性出價理財首選~
❦
免費諮詢可
+line
❦
望您來電問透透
❦
消除疑慮再委託
❦
收費契約最透明
❦❦❦❦❦❦❦❦❦❦❦❦❦❦❦❦❦❦❦❦❦❦❦❦❦❦❦❦❦
雙北助理專線
☎
02-22650614
桃園助理專線
☎
03-3293994
全省
☎
0913303663
🏘
️
經紀業:財欣不動產管理顧問有限公司
統一編號:22857204
✍
經紀人:
(97)
年北市經證字001562號
💼
營業員:(98)登字第133601號
❦❦❦❦❦❦❦❦❦❦❦❦❦❦❦❦❦❦❦❦❦❦❦❦❦❦❦❦❦❦❦❦❦❦❦❦
生活e點通~
📣
財政部新青安成家
📣
全國地政電子謄本系統
📣
地籍圖便民服務
📣
房地合一專區
📣
台北捷運路線圖
📣
新北捷運路線圖
📣
桃園捷運路線圖
📣
台中捷運路線圖
汐止透天法拍-0
汐止透天法拍-1
汐止透天法拍-2
汐止透天法拍-3
汐止透天法拍-4
汐止透天法拍-5
汐止透天法拍-6
汐止透天法拍-7
汐止透天法拍-8
汐止透天法拍-9
物件留言
請注意,如果您詢問的內容與物件不相符合或是廣告,經過審核,系統將會直接刪除您的發問內容
相似物件
汐止
售2531萬
汐止區湖東街30號3層樓,法拍屋代標 專線0913-303663 +LINE
類型:法拍透天_中興路傳統市場
坪數:48.16坪
格局:3房
汐止
售1548萬
汐止區忠三街10巷37弄4號4層樓附車位,法拍屋代標 專線0913-303663 +LINE
類型:法拍透天_捷運東湖站
坪數:107.44坪
格局:3房
汐止
售2812萬
汐止區秀山路104巷11號3層樓,法拍屋代標 專線0913-303663 +LINE
類型:法拍透天_大尖山風景區
坪數:102.22坪
住宅分類
八里透天拍賣
三芝透天拍賣
三重透天拍賣
三峽透天拍賣
土城透天拍賣
中和透天拍賣
五股透天拍賣
平溪透天拍賣
永和透天拍賣
石門透天拍賣
石碇透天拍賣
汐止透天拍賣
坪林透天拍賣
林口透天拍賣
板橋透天拍賣
金山透天拍賣
泰山透天拍賣
烏來透天拍賣
貢寮透天拍賣
淡水透天拍賣
深坑透天拍賣
新店透天拍賣
新莊透天拍賣
瑞芳透天拍賣
萬里透天拍賣
樹林透天拍賣
雙溪透天拍賣
蘆洲透天拍賣
鶯歌透天拍賣
免責聲明:House-Info房屋網平台系統為租用式開放房屋買賣網站建置平台,僅提供會員查詢-
新北市
,
汐止區
,
透天
-等房屋資訊參考,並不涉入任何諮詢、交易。 物件(服務)聯絡人公佈的資訊、文字、照片、圖形、產權、廣告內容、或其他資料若有不實或違法情事,或與客戶聯絡交易過程中若衍生民事或刑事等法律問題,皆與House-Info房屋網站無關,所有商標、文章、名稱等版權,皆歸屬原著作者所有!
新北法拍屋
|
新北市法拍屋
|
新北法拍屋公告
|
買新北法拍屋
|
新北市法拍屋
|
新北法拍屋買賣
|
新北法拍屋
|
新北法拍屋拍賣
資料處理中,請稍後...